RIVERCOVE RESIDENCES

Property Description

Looking for a home that checks all the boxes? This beautifully renovated 3-bedroom + yard unit at Rivercove Residences is a rare find and will be reaching its M.O.P status in October 2025 – the only Executive Condominium (EC) to do so this year! Located on a high floor with unblocked greenery views, this unit is bright, breezy, and enjoys a desirable North-South orientation. Tastefully renovated by the owner and maintained in pristine condition, it’s truly 100% move-in ready.

Residents will enjoy excellent connectivity and convenience. It’s just 3 LRT stops to Compass One Shopping Mall and Sengkang MRT Station, and 2 LRT stops to Seletar Mall. For nature lovers, the side gate offers direct access to the park connector, which leads to the scenic Sengkang Riverside Park — perfect for weekend strolls or cycling. Drivers will appreciate the easy access to major expressways such as the TPE, CTE, and KPE, making commuting a breeze.

Families with young children will also be pleased to know that the unit is within 1km of several primary schools, including the highly sought-after Nan Chiau Primary School.

Don’t miss this rare opportunity to own a premium unit in one of the most anticipated M.O.P EC Project of 2025. Contact us today for an exclusive viewing!

Location

 

Property Features & Amenities

Property Type 3 BEDROOM + YARD
Size
904 SQFT
Floor Level
High
District D19
Completion Year 2020
Price $1,480,000

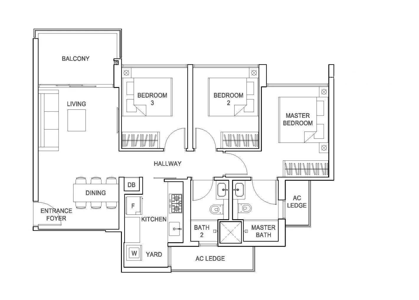
Floor Plan

Book Viewing Appointment