377A Hougang St 32

Property Description

Located at Blk 377A Hougang St 32, this newly MOP mixed-development unit presents a rare opportunity to own a home that offers both everyday convenience and strong long-term potential. Situated in the heart of Hougang, everything you need is literally at your doorstep — from a shopping mall with a supermarket to a wide variety of eateries and retail shops right below the block, making daily errands and dining incredibly convenient.

Positioned on a mid-floor corner, the unit enjoys enhanced privacy with minimal foot traffic, creating a quiet and comfortable living environment. A unique bonus is the generous outdoor space just outside the unit, which can be creatively used for plants, additional storage, or even a cosy relaxation corner. The home is bright and breezy with no direct west sun, ensuring a comfortable indoor temperature throughout the day. It has been nicely renovated and is in move-in condition, thoughtfully maintained and very well kept by the current owners.

Connectivity will continue to improve with the upcoming Defu MRT Station (Cross Island Line, estimated completion 2030) nearby, enhancing accessibility and potential value appreciation. For families, the unit is located within 1km to Holy Innocents’ Primary School and Xinghua Primary School, providing added convenience for school-going children.

Whether you are upgrading, looking for a well-located home, or seeking a property with future growth drivers, this unit checks all the right boxes.

Reach out today for more details, a personalised price analysis, or to arrange an exclusive viewing before it’s taken.

Location

 

Property Features & Amenities

Property Type HDB 4rm
Size
94 SQM
Floor Level
Mid
District D19
Completion Year 2021
Price $830,000

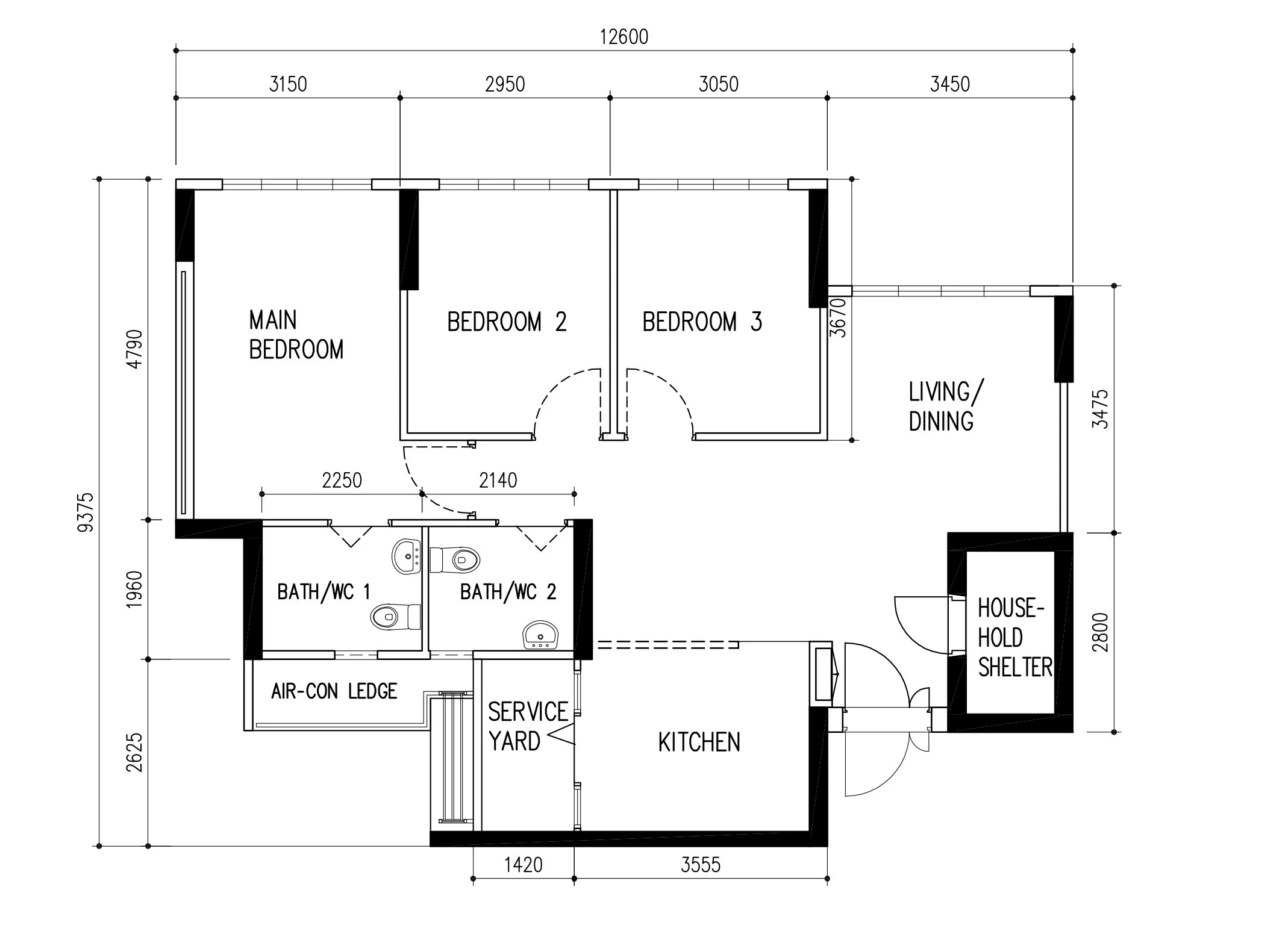
Floor Plan

Book Viewing Appointment